the Invisible House
Client: Mr C Ferreira
Status: cancelled
Budget: -
Services Offered: full suite + Heritage audit
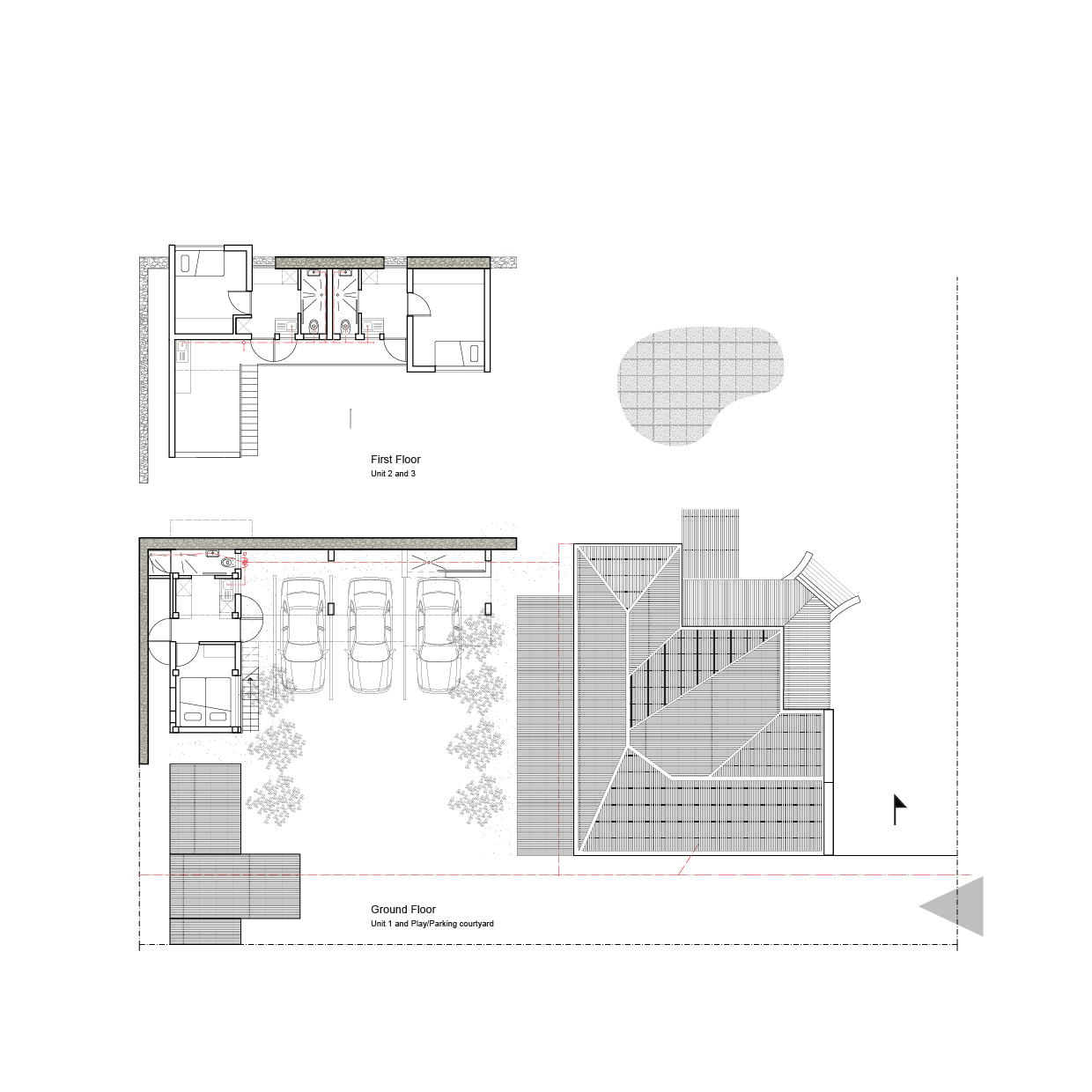
A building becomes a heritage building once it is 60 years old in South Africa. The burdun of proving that it does not have any merit to warrant protection becomes the owners. That process is tedious and time consuming. To profit from his property’s central location, Mr Ferreira opted to build three independent rentable units for single students.

The house on his property
was completed in 1905, which means it is protected by Heritage laws. One of the
by-laws state that the street elevation should remain unchanged. Any
construction has to take place outside of the sight lines from the street view.
Another constraint is the extreme topography on site. Both these assisted with
the form and siting of the building. Parking requirements assisted with the
massing.
Phase 1: build retaining wall; Phase 2: build unit 1; Phase 3: build unit 2 and 3.




